盾構機大腦內部控制核心是PLC控制系統,PLC控制系統有7個優勢
盾構機大腦內部控制核心是PLC控制系統,PLC控制系統有7個優勢,分別關于盾構機在PLC控制系統中的穩定性、可靠性、擴展性、通用性,編程簡單、方便體積小。
盾構機是現代地下工程建設中的重要工具,集光學、機械、電氣、液壓、傳感、信息技術于一體,具有開挖切削土體、輸送土碴、拼裝隧道襯砌、測量導向糾偏等功能,涉及地質、土木、機械、力學、液壓、電氣、控制、測量等多門學科技術,而且要按照不同的地質進行“量體裁衣”式的設計制造,可靠性要求極高。(電氣控制柜)
這樣一個龐大的機器,其大腦當屬其內部控制核心---自動化PLC控制系統,選擇PLC作為盾構機的控制系統有以下幾個優勢:(1)PLC就有很強的穩定性和可靠性:特別是在地鐵施工這樣惡劣的工作環境,濕氣很重,灰塵 較多,滲水具有腐蝕性,因此對電氣控制系統可靠性要求非常高。
(2)PLC的擴展性和通用性比較好:自1969 年第一臺PLC出現到現在,PLC已成為一個工控標準,在這個標準下,相應元件的選型非常容易。(軟啟動柜)
(3)編程簡單:PLC使用的編程語言簡單通用, 易于掌握,對于編程人員的計算機知識要求比較低,不用去掌握太深層次的硬件和固件知識。
(4)功能強大,維護方便:對于盾構機這樣需 要上千個I/O點的控制系統,PLC也可以輕松應付,對于其中PID調節,網絡通信,看門狗等等任務也可以很輕松的完成。PLC由于模塊化了,維護起來 也是非常方便的。(變頻控制柜)
(5)體積小,功耗低,開發周期短。
盾構機大腦內部控制核心是PLC控制系統,PLC控制系統有7個優勢
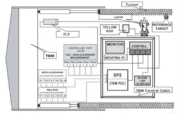
自動化PLC控制系統的組成和運行:(1)PLC系統有工控機、兩臺調制解調器、PLC運行及儲存器、各類傳感器等輸入部分及各類電繼電器等輸出部分,管理程序安裝在地面監控室的工控機(上位機)內,通過一臺在監控室的調制解調器和一臺安裝在盾構機調制解調器相互譯制,與盾構機的PLC串口相連,從而監控和控制PLC運行,同時上位機也起著掘進參數數據保存作用,方便操作人員使用和維護。(軟啟動柜)
(2)根據設定的程序,在某些必要條件滿足時,PLC才能進行下一步工作,否則,程序就不能往下運行,設備停止運行,同時會將錯誤信息顯示在操作室的電腦上。我們按照顯示的錯誤信息及代碼去查找故障原因,即PLC是否正常輸入、PLC是否正常輸出、前后輸入/輸出設備是否正常、連接線路是否良好。這樣分段分析、仔細排查,故障會很容易得到解決。
自動化PLC控制系統在盾構機上起到了很大的作用,可以提高惡劣環境下的可靠工作能力及幫助使用維修人員快速排除故障,可以加快工程進度保證工程質量。
1 PLC系統的組成
PLC系統有工控機、兩臺調制解調器、PLC運行及儲存器、各類傳感器等輸入部分及各類電繼電器等輸出部分,見圖1。SIMATIC Man-ager是S7-PLC自動控制程序的管理程序,安裝在地面監控室的工控機(上位機)內,通過一臺在監控室的調制解調器和一臺安裝在盾構機調制解調器相互譯制,與盾構機的PLC串口相連,從而監控和控制PLC運行,同時上位機也起著掘進參數數據保存作用,方便操作人員使用和維護。
PLC系統的軟件主要有地面監控室電腦上的操作系統,SIMATIC Manager程序,Netpro程序及監控程序PDV,以及安裝在盾構機PLC上的控制程序。
2 PLC系統運行
根據設定的程序,在某些必要條件滿足時,PLC才能進行下一步工作,否則,程序就不能往下運行,設備停止運行,同時會將錯誤信息顯示在操作室的電腦上。我們按照顯示的錯誤信息及代碼去查找故障原因,即PLC是否正常輸入、PLC是否正常輸出、前后輸入/輸出設備是否正常、連接線路是否良好。這樣分段分析、仔細排查,故障會很容易得到解決。
以盾構機中心回轉體EP2潤滑脂加注系統為例,說明S7-PLC自動控制程序在盾構機故障排除中的應用。在盾構機中,EP2潤滑加注系統屬于較復雜且很重要的部分,包含螺旋機密封、球軸承密封、中心回轉體密封等部位的自動密封。本系統的正常運行與否不僅關系到盾構機能否順利運行,同時對延長設備使用壽命起著很重要的作用。EP2加注系統是壓縮空氣通過由PLC控制的電磁閥為氣動泵提供動能來源,輸入氣壓和輸出油脂壓力的比值是1∶50,即1bar的氣壓能產生50bar的油脂壓力。通常將壓縮空氣的壓力調節為1.5~2.0bar,即油脂壓力為75~100bar,足以克服油脂在管內的損耗,保證輸送到盾構機上的多個油脂分配閥時有足夠的壓力,再由油脂分配閥非均勻的將油脂輸送到需要被潤滑的部位,達到自動潤滑效果,如圖2。
油脂分配閥在潤滑系統中起著重要作用,它的結構組成如圖3所示。其工作過程:當設備啟動時,PLC發出指令為二位二通電磁閥通電,如圖4,具有壓力的油脂進入油脂分配閥,開始進行油脂分配;在此種情況下,分配閥所分配的油脂量可以通過控制閥芯的沖程數進行計算,閥芯的沖程數通過脈沖傳感器輸入到PLC,如圖5;當累積到一定量的沖程數時,PLC發出指令,停止向電磁閥通電,油脂分配閥的進口關閉,油脂分配結束。當下個指令發出時,照此重復進行。
盾構機大腦內部控制核心是PLC控制系統,PLC控制系統有7個優勢
一次,在盾構機操作室的電腦上,顯示中心回轉體油脂潤滑系統故障,通過利用PLC程序和顯示的錯誤信息,查得是油脂分配閥的輸出無信號。將沖程傳感器拆除,將一直徑與傳感器內徑相差不多的金屬棒體插入其中,作活塞式往復運動,可以從PLC輸入指示燈看出,傳感器能正常工作,隨后將其中的一條輸出油脂管拆除,手動進行注脂,油脂還是不能注出;后將分配閥整體拆下,在機修房拆開檢查、清潔,zui后在清理閥板時,從閥板孔中取出一顆細小砂子(直徑約1mm),再次安裝到盾構機上,試機正常,原來是機修工在更換油脂桶時,操作不慎,有雜物掉入油脂桶,導致了此故障的發生。
從上面可以看出,PLC在海瑞克盾構機上得到了很大的應用,SIMATIC Manager能很好的幫助我們查找到故障的發生點,有助我們更準、更快的排除故障。
三菱PLC 在知識分享 ,盾構機大腦內部控制核心是PLC控制系統,PLC控制系統有7個優勢相關文章,幫您更好的了解盾構機大腦內部控制核心是PLC控制系統,PLC控制系統有7個優勢您也可以和大家一起交流,發表您自己的看法,也可以把您的文章和您看到的文章和大家分享。




評論信息